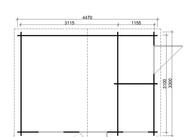
Casa de Jardín Tierra Viva S13 4,27×3,10 m
5.388,50 €
Doble espacio, máxima versatilidad. La Caseta de Madera Tierra Viva Tipo S13 (4,27 x 3,10 m) es la solución premium para quienes necesitan «dos casetas en una». Construida en abeto nórdico de 45 mm con doble machihembrado, este modelo único incluye una extensión lateral integrada y dos puertas independientes acristaladas. Ya sea para crear un estudio de jardín con un almacén anexo o una sala de recreo con zona de herramientas, su diseño de techo inclinado, sus dos ventanas oscilobatientes y su suelo de madera incluido ofrecen un confort y una robustez incomparables bajo un estilo moderno y funcional.
- Transporte peninsular. Consulte precio a Islas. (Entrega gratuita a pie de camión)
- Descarga incluida.
- Suelo Incluido
Descripción
Casa de Jardín Tierra Viva S13: El Híbrido Perfecto de 45 mm
La Caseta de Madera Tierra Viva Tipo S13 redefine el almacenamiento exterior al ofrecer una estructura de gran formato con una extensión funcional de serie. Con una superficie total que roza los 13,2 m², esta cabaña está diseñada para usuarios que buscan segmentar su espacio sin renunciar a una estética coherente y una solidez estructural de nivel profesional.
Estructura de Alta Densidad y Aislamiento Natural
La robustez de la Tipo S13 se basa en sus muros de 45 mm de espesor. El abeto nórdico seleccionado, unido mediante un sistema de doble machihembrado, proporciona una estabilidad mecánica excepcional. Las esquinas superpuestas fresadas con precisión actúan como barrera contra el viento y la humedad, convirtiendo esta caseta en una estancia apta para ser habitada como taller, oficina o zona de relax durante todo el año.
Doble Acceso y Extensión Lateral: Versatilidad Real
El punto fuerte de este modelo es su configuración de accesos:
-
Doble Puerta de Entrada: Incluye dos puertas de 90 x 185 cm con medio cristal real. Esto permite acceder a diferentes áreas de la cabaña de forma independiente, ideal si se utiliza la extensión lateral como trastero y el cuerpo principal como estudio.
-
Luminosidad y Ventilación: Además de las puertas acristaladas, cuenta con 2 ventanas oscilobatientes con vidrio auténtico y parteluces, garantizando un flujo de aire constante y luz natural en todo el interior.
Ingeniería de Techo y Suelo
-
Techo Inclinado de 16°: Un diseño contemporáneo que evacúa eficientemente el agua y la nieve. Está fabricado con tablas machihembradas de 20 mm sobre correas de techo reforzadas y un alero frontal de 0,70 m que protege la fachada.
-
Suelo Térmico Completo: Se entrega con un bastidor base impregnado en autoclave (protección antixilófagos) y tableros cepillados de 20 mm, ofreciendo una base firme, aislada y lista para soportar peso elevado.
Consejo de experto: La madera se entrega en estado natural. Para proteger la inversión, recomendamos aplicar un lasur de alta calidad tras el montaje. Esto sellará las juntas de los 45 mm de grosor y mantendrá la elasticidad natural del abeto nórdico frente a los cambios de temperatura.
✨ Características Técnicas Destacadas
🚪 Doble Puerta de Entrada Versátil
Incluye dos puertas de 90 x 185 cm con medio cristal real, permitiendo acceder a diferentes áreas de la cabaña de forma independiente. Ideal para separar espacios, como un trastero en la extensión lateral y un estudio en el cuerpo principal.
🪟 Luminosidad y Ventilación Óptima
Además de las puertas acristaladas, dispone de 2 ventanas oscilobatientes con vidrio auténtico y parteluces, garantizando una excelente entrada de luz natural y un flujo de aire constante en todo el interior.
🪵 Suelo Térmico Completo y Resistente
Se entrega con un bastidor base impregnado en autoclave (protección antixilófagos) y tableros cepillados de 20 mm, proporcionando una base firme, aislada y preparada para soportar cargas elevadas.




















Valoraciones
No hay valoraciones aún.