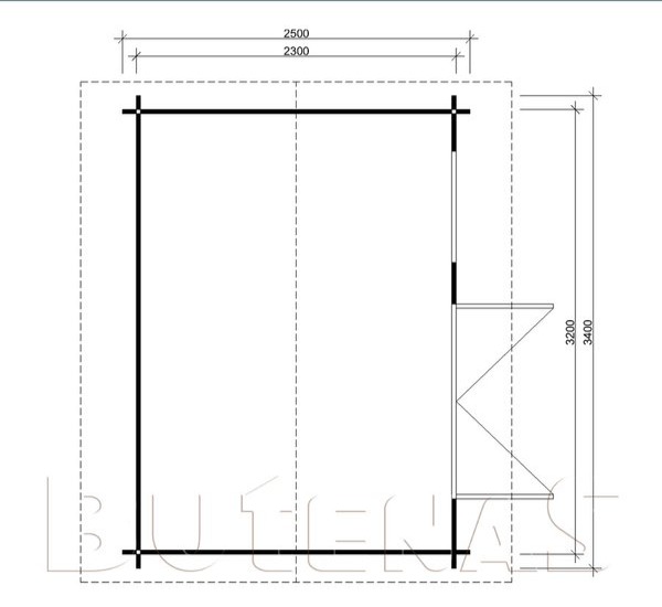
Caseta de Madera Tierra Viva 230×320 cm
3.358,50 €
Amplitud, ventilación y robustez en un diseño clásico. La Caseta de Madera Tierra Viva (230 x 320 cm) es la solución de almacenamiento definitiva para jardines que requieren un extra de espacio. Fabricada en abeto nórdico de 30 mm, destaca por su elegante tejado a dos aguas y una característica diferenciadora: una ventana oscilobatiente (DK) de vidrio real que garantiza luz y ventilación óptimas. Con suelo incluido y una superficie de más de 7 m², es el refugio perfecto para maquinaria pesada, herramientas o incluso para habilitar un pequeño taller exterior.
- IVA INCLUIDO.
- Transporte peninsular. Consulte precio a Islas. (Entrega gratuita a pie de camión)
- Descarga incluida.
- Suelo Incluido
Descripción
Caseta Tierra Viva: Máxima Capacidad y Confort en el Jardín
La Caseta de Madera Tierra Viva ha sido diseñada para quienes no quieren renunciar a nada. Su formato alargado de 2,30 x 3,20 metros la convierte en una de las opciones más versátiles de su categoría, permitiendo una organización interna eficiente sin sacrificar la estética tradicional que aporta su tejado a dos aguas.
Construcción en Abeto Nórdico de 30 mm
La solidez es la seña de identidad de este modelo. Los tablones machihembrados de 30 mm ofrecen un grosor superior que asegura la estabilidad estructural y un aislamiento natural frente al viento y la lluvia. El sistema de lengüeta y ranura permite un montaje preciso, creando una barrera hermética que protege sus pertenencias más valiosas durante todo el año.
Ventilación y Luminosidad Superior
A diferencia de otros modelos, la Tierra Viva incluye una ventana oscilobatiente (DK) con vidrio real. Este sistema permite:
-
Ventilación controlada: Ideal si utiliza la caseta para guardar productos químicos de jardín o como pequeño taller de bricolaje.
-
Luz Natural: Inunda el interior de claridad, facilitando el trabajo sin necesidad de iluminación artificial durante el día.
Detalles Técnicos de Alta Gama
-
Puerta Doble Reforzada: Con unas dimensiones de 140 x 185 cm, ofrece un acceso cómodo para objetos de gran volumen como cortacéspedes de asiento o mobiliario de terraza. Incluye cerradura de seguridad y cristales auténticos.
-
Suelo y Base Protegida: Se suministra con un bastidor base impregnado que aísla la estructura de la humedad ascendente, junto con tableros cepillados de 20 mm que forman un suelo firme y resistente.
-
Techo a Dos Aguas Eficiente: Fabricado con tablas machihembradas de 20 mm y rematado con molduras estéticas, garantiza un drenaje perfecto y una durabilidad excepcional frente a las inclemencias climáticas.
Consejo Pro: Al entregarse en madera natural, se recomienda aplicar un tratamiento de lasur o pintura de exteriores tras el montaje. Esto no solo personaliza el diseño, sino que sella las fibras del abeto contra los rayos UV y la humedad ambiental.
✨ Características Técnicas Destacadas
• Puerta Doble Reforzada
Con unas dimensiones de 140 x 185 cm, permite el acceso de objetos de gran volumen como cortacéspedes de asiento o mobiliario de terraza. Incluye cerradura de seguridad y cristales auténticos.
• Suelo y Base Protegida
Se suministra con un bastidor base impregnado que aísla la estructura de la humedad ascendente, junto con tableros cepillados de 20 mm que forman un suelo firme y resistente.
• Techo a Dos Aguas Eficiente
Fabricado con tablas machihembradas de 20 mm y rematado con molduras estéticas, garantiza un drenaje perfecto y una gran durabilidad frente a las condiciones climáticas.
• Consejo Pro
Al entregarse en madera natural sin tratar, se recomienda aplicar un tratamiento de lasur o pintura para exteriores tras el montaje, protegiendo la madera frente a los rayos UV y la humedad.
















Valoraciones
No hay valoraciones aún.