Casa de Jardín Premium 5,9×6,3 m
Rango de precios: desde 25.272,80 € hasta 37.058,00 €
La excelencia arquitectónica en madera laminada. La Casa de Jardín Premium BTC-26 (5,90 × 6,30 m) es una edificación de alto standing que redefine el concepto de estancia exterior. Construida con tablones encolados de hasta 140 mm de abeto nórdico, ofrece una estabilidad estructural y un aislamiento natural de grado residencial. Su espectacular alero de 2,40 metros crea un porche monumental, mientras que sus cerramientos de gama IV-68 con doble acristalamiento garantizan un confort térmico excepcional. Con estancias interiores independientes, es la solución definitiva para una oficina de lujo, un gimnasio privado o una casa de invitados de máxima categoría
- IVA INCLUIDO.
- Transporte peninsular. Consulte precio a Islas. (Entrega gratuita a pie de camión)
- Descarga incluida.
- Suelo Incluido
Descripción
Casa Premium BTC-26: Ingeniería Residencial de 37 m²
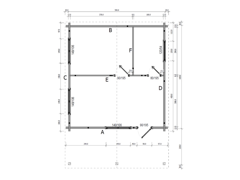
El modelo BTC-26 representa la cima de la gama en construcciones de madera para jardín. Con una superficie de casi 37 m² útiles, esta cabaña no es un mero almacén, sino una estructura diseñada para ser habitada y disfrutada durante todo el año, gracias al uso de materiales técnicos de última generación y un diseño de planta inteligente.
Tecnología en Madera Laminada: Estabilidad Total
A diferencia de la madera maciza tradicional, el modelo BTC-26 utiliza tablones de bloque encolados (60–140 mm). Esta tecnología de laminado minimiza las torsiones naturales de la madera, ofreciendo:
-
Mínima Contracción: Una estructura que mantiene su estanqueidad y ajuste milimétrico durante décadas.
-
Aislamiento Superior: El grosor de hasta 140 mm proporciona una inercia térmica que reduce drásticamente el gasto en climatización.
-
Refuerzo Estructural: Varillas roscadas internas que aseguran una solidez masiva frente a cualquier inclemencia climática.
El Porche de sus Sueños: Alero de 2,40 m
El rasgo más imponente de esta casa de jardín es su voladizo frontal de 2,40 metros, soportado por postes robustos y hastial reforzado. Este espacio permite proyectar una terraza cubierta de gran formato, ideal para crear un salón exterior protegido del sol y la lluvia, duplicando la zona de vida útil de la cabaña.
Cerramientos IV-68: Estándar de Vivienda
La BTC-26 está equipada con carpintería de alta gama que marca la diferencia en el confort interior:
-
Ventanas Oscilobatientes IV-68: 4 unidades con doble acristalamiento aislante, rieles de lluvia de aluminio y sellado perimetral completo.
-
Puerta Exterior Semiaislada: Con umbral de aluminio de perfil bajo, juntas de estanqueidad y cerradura de cilindro de seguridad.
-
Distribución Interior: Incluye 2 puertas interiores macizas, permitiendo compartimentar la cabaña en diferentes estancias (despacho, baño, zona de descanso o almacén técnico).
Especificaciones Técnicas de Élite:
-
Techo y Suelo Reforzados: Correas de cubierta laminadas (92/140 mm) y suelo de 20 mm sobre bastidor base impregnado de 60 mm, diseñado para soportar instalaciones complejas y mobiliario pesado.
-
Inclinación de 15,8°: Un diseño de techo inclinado moderno que garantiza un drenaje eficiente y una estética contemporánea.
Nota de experto: Esta cabaña es el lienzo perfecto para un proyecto de «tiny house» o estudio profesional. Se recomienda el montaje sobre solera de hormigón armada y la aplicación de un lasur de alta gama para proteger la inversión y resaltar la nobleza del abeto nórdico laminado.
✨ Características Técnicas Destacadas
• Cerramientos IV-68 de Estándar Residencial
Equipada con carpintería de alta gama IV-68, ofreciendo un nivel superior de aislamiento y confort interior propio de vivienda.
• Ventanas Oscilobatientes de Alto Rendimiento
Dispone de 4 ventanas oscilobatientes con doble acristalamiento aislante, rieles de lluvia de aluminio y sellado perimetral completo, garantizando estanqueidad, eficiencia energética y durabilidad.
• Puerta Exterior Semiaislada
Incorpora una puerta con umbral de aluminio de perfil bajo, juntas de estanqueidad y cerradura de cilindro de seguridad, combinando accesibilidad, aislamiento y protección.
• Distribución Interior Versátil
Incluye 2 puertas interiores macizas, permitiendo dividir el espacio en diferentes estancias como despacho, baño, zona de descanso o área técnica.
• Estructura Reforzada de Alta Capacidad
Cuenta con correas de cubierta laminadas (92/140 mm) y suelo de 20 mm sobre bastidor base impregnado de 60 mm, preparado para soportar instalaciones complejas y mobiliario pesado.
• Techo Inclinado de Diseño Eficiente
Con una inclinación de 15,8°, favorece un drenaje óptimo del agua y aporta una estética moderna y elegante.
• Nota de Experto
Ideal como base para un proyecto de "tiny house" o estudio profesional. Se recomienda el montaje sobre una solera de hormigón armada y la aplicación de un lasur de alta gama para proteger la inversión y realzar la calidad del abeto nórdico laminado.




















Valoraciones
No hay valoraciones aún.