Casa de Jardín KUBA 7,5×4,7 m
Rango de precios: desde 17.026,10 € hasta 30.261,00 €
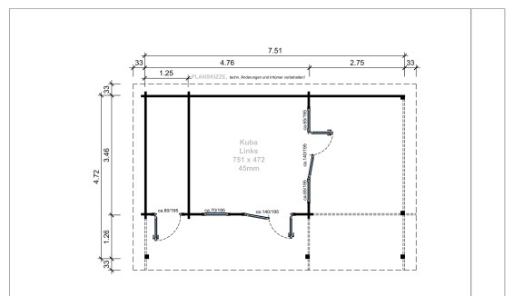
El epicentro del ocio y el diseño exterior. La Casa de Jardín KUBA (7,51 × 4,72 m) es una imponente estructura de lujo que difumina las líneas entre el interior y el jardín. Con una superficie total que supera los 35 m², esta cabaña destaca por su espectacular terraza cubierta integrada y un despliegue de cristalería aislante de suelo a techo. Fabricada en abeto nórdico con grosores personalizables de hasta 140 mm, la KUBA ofrece un salón interior de 16 m² conectado a un porche monumental, convirtiéndose en el refugio perfecto para cenas de verano, un estudio profesional con zona de relax o una sofisticada casa de invitados con vistas panorámicas.
- IVA INCLUIDO.
- Transporte peninsular. Consulte precio a Islas. (Entrega gratuita a pie de camión)
- Descarga incluida.
- Suelo Incluido
Descripción
Casa de Jardín KUBA: Arquitectura Abierta y Confort Premium
La Casa de Jardín KUBA representa el concepto moderno de «Living Exterior». Su diseño inteligente combina una estancia interior robusta y privada con una amplia zona de porche bajo el mismo techo, ofreciendo una solución arquitectónica versátil para quienes buscan un espacio de alta gama que revalorice su propiedad.
Construcción a Medida: De 45 mm a 140 mm
La KUBA se adapta a cualquier necesidad climática y de uso gracias a su configuración de muros variables:
-
Grosor Estándar (45-60 mm): Excelente para uso recreativo y almacenamiento de lujo.
-
Grosor Residencial (80-140 mm): Con múltiples uniones machihembradas y varillas roscadas de tensión, estas secciones ofrecen una estabilidad masiva y un aislamiento térmico natural que permite climatizar el interior para su uso como oficina o habitación de invitados durante todo el año.
Un Mirador de Luz: Acristalamiento Aislante 360°
La luminosidad es el alma de este modelo, equipado con carpintería de calidad superior:
-
Triple Acceso Acristalado: Incluye dos puertas dobles de 140 cm y una puerta individual, todas con vidrio aislante térmico, umbrales de aluminio de perfil bajo y juntas de estanqueidad profesionales.
-
Ventanas Panorámicas: Dos elementos fijos de gran formato (65 x 195 cm) y una ventana oscilobatiente con canalón de aluminio aseguran una visibilidad total y una ventilación controlada.
-
Privacidad y Estética: La perfilería de madera maciza y los herrajes de precisión garantizan un cierre seguro y un acabado estético de nivel residencial.
Terraza Cubierta: El Porche Multifuncional
El diseño del tejado se extiende 2,75 metros hacia la derecha, creando una terraza protegida de más de 12 m². Este espacio es ideal para:
-
Comedor de Verano: Protegido del sol directo y la lluvia.
-
Zona Chill-out: Perfecta para mobiliario de exterior de gran formato.
-
Gimnasio Exterior: Un área ventilada pero resguardada para el entrenamiento diario.
Especificaciones Técnicas de Ingeniería:
-
Techo Reforzado: Sustentado por 7 vigas encoladas de 80/190 mm, diseñado para soportar cubiertas pesadas o instalaciones de paneles solares sin ceder.
-
Suelo Térmico: Bastidor base impregnado en autoclave con tablones cepillados de 20 mm, elevando la estructura para una protección total contra la humedad del suelo.
-
Madera Natural: Se entrega en abeto nórdico sin tratar, permitiendo una personalización total con lasures de poro abierto o pinturas climáticas modernas.
Recomendación de montaje: Debido a la envergadura de la estructura (7,5 metros de largo), es fundamental instalar la KUBA sobre una solera de hormigón nivelada de al menos 15-20 cm para garantizar la alineación perfecta de sus múltiples puertas y ventanales.
✨ Características Técnicas Destacadas
• Techo Reforzado de Ingeniería
Sustentado por 7 vigas encoladas de 80/190 mm, diseñado para soportar cubiertas pesadas o instalaciones de paneles solares sin deformaciones.
• Suelo Térmico Aislante
Incluye un bastidor base impregnado en autoclave con tablones cepillados de 20 mm, elevando la estructura y protegiéndola completamente de la humedad del terreno.
• Madera Natural Personalizable
Se entrega en abeto nórdico sin tratar, permitiendo una personalización total mediante lasures de poro abierto o pinturas climáticas modernas.
• Recomendación de Montaje
Debido a la envergadura de la estructura, es fundamental instalarla sobre una solera de hormigón nivelada de al menos 15-20 cm, garantizando la alineación perfecta de puertas y ventanales.


















Valoraciones
No hay valoraciones aún.